Site mis a jour le 16/01/2021 00:45
Appartement 2éme étage avec ascenseur quartier Bougainville
15 Avenue Marcel Dassault Rochefort
son nom est "ÎLE D'YEU".
C'est un T2PLUS grand confort de 40m2 n°204C
Visite virtuelle en vidéo cliquez sur ce lien ou sur l'image: https://www.youtube.com/embed/ILJ66ZlVvHk
![]()
La pièce de vie vue depuis l'entrée
![]()
La pièce de vie vue depuis l'entrée
![]()
La pièce de vie vue depuis l'entrée
![]()
Le canapé en position replié
![]()
Le canapé en position couchage 140x190
![]()
La pièce de vie vue depuis la cuisine télévision orientée
![]()
Les WC et la salle de douche
![]()
Les WC séparés
![]()
La salle de douche côté douche 80x120
![]()
Salle de douche sèche-serviettes, vasque, étagère, miroir
![]()
La pièce de vie vue depuis la chaine HIFI avec madame devant l'évier
![]()
La pièce de vie vue depuis la chaine HIFI avec refrigérateur ouvert
![]()
frigo 300 litres, congel 100 litres, cafetière grille-pain et bouilloire
![]()
Plan de travail, bar, snack avec chaises hautes
![]()
Lave vaisselle 14 couverts, machine à laver 6kg, micro-onde 28 litres
![]()
Four 42 litres, rangements sous plan de travail 4 tiroirs, 4 portes
![]()
Placard hauts et bas, micro-onde 23 litres, plaque à induction 4 feux
![]()
Vue entrée
![]()
Chambre vue depuis la porte avec 2 lits 90x190 articulés de relaxation un electrique et un manuel
utilisables en couchage king size 180x190
![]()
La chambre vue depuis la fenêtre
![]()
La chambre avec vue sur le placard double penderie et lingére
![]()
Loggia table et chaises de jardin
![]()
Loggia côté salon
![]()
Loggia vue sur les jardins et les bateaux
![]()
![]()
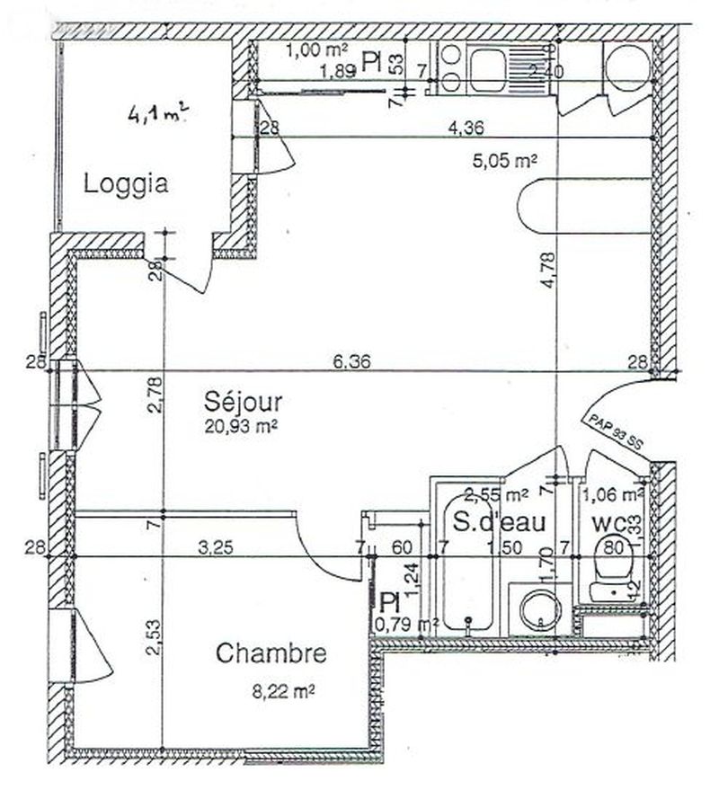
Plan, ascenseur, boites aux lettres, parking
| le plan de l'appartement n°204C | |
|
|
![]() |
| boites aux lettres dans le hall | l'accés par l'ascenseur | |
|
|
|
|
| la plaque signalétique des batiments | la porte télécommandée du parking | |
|
|
![]() |
![]() |
| le parking sécurisé placement libre | le parking sécurisé placement libre | |
|
|
|
|
Vues synthetiques 3D
![]() |
![]() |
|
D![]() |
![]() |
Extérieurs et environnement
| vue aérienne du port et des batiments | vue des jardins entre l'appartement et le port | |
|
|
![]() |
![]() |
| les environs de Rochefort, les iles, les plages | le trajet pour aller aux thermes | |
|
|
![]() |
![]() |
| le port et les voiliers | le port et les voiliers | |
|
|
![]() |
![]() |